科技突破未来 品质创造价值
首页 产品中心 工业阀门系统 球阀
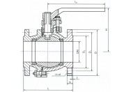
钢制法兰球阀用于截断或接通管路中的介质,选用不同的材质,可分别适用于水、蒸汽、油品、液化气、天然气、煤气、硝酸、醋酸、氧化性介质、尿素等多种介质。