0571-64618808
杭州乐鱼leyu阀门有限公司

科技突破未来 品质创造价值

首页 产品中心 给排水系统 蝶阀

手动、 气动、 电动法兰式蝶阀

产品概述:

各软密封蝶阀适用于温度≤200℃(应密封件不同而定),公称压力≤1.6MPa的食品、医药、化工、石油、电力、冶金、城建、轻纺、造纸等给排水、气体管道上作调节流量和截流介质的作用。其主要特点为:

1、设计新颖、合理,结构独特,重量轻,启闭迅速;

2、操作力矩小、方便、省力灵巧;

3、伸缩蝶阀除了能作调节和节流作用,补偿管道误差所产生的热胀冷缩功能外,还能为安装更换、维修管道提供方便;

4、密封件可以更换,密封性能可靠,达到双向密封零泄漏;

5、密封材料耐老化、耐腐蚀、使用寿命长等特点。


咨询我们
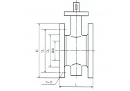
  • 技术参数
  • 外型尺寸
  • 零件材料
  • 下载中心
  • 1610588631(1).jpg


  • 1610588604(1).jpg


  • 1610588648(1).jpg