0571-64618808
杭州乐鱼leyu阀门有限公司

科技突破未来 品质创造价值

首页 产品中心 给排水系统 闸阀

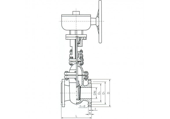
电动、伞齿轮传动铁制暗杆闸阀

产品概述:

闸阀是指启闭体(阀板)由阀杆带动阀座密封面作升降运动的阀门,可接通或截断流体的通道。当阀门部分开启时,在闸板背面产生涡流,易引起闸板的侵蚀和震动,也易损坏阀座密封面,修理困难。闸阀通常适用于不需要经常启闭,而且保持闸板全开或全闭的工况。不适用于作为调节或节流使用。


咨询我们
  • 技术参数
  • 外型尺寸
  • 零件材料
  • 下载中心
  • 1610592282(1).jpg


  • 1610592262(1).jpg


  • 1610592297(1).jpg